Member Only|公式|フリーディア大濠公園プレミアム | 東宝住宅株式会社

Member Only

――然るべき邸宅美を――

来場予約受付中

「大濠公園」徒歩3分、
フリーディアが描く静かな都市の暮らし。

大濠公園image

デジタルパンフレット公開中

本物件のパンフレットを公開しております。

Concept

美と、園と。

然るべき邸宅美を

いくつもの価値が重なりあい、
これから迎える新しい人生を上質かつ濃密に彩る、
生涯を託すにふさわしい住まい。

六本松の街の賑わいと、大濠公園の自然の美しさ、
モダンで高感度な分の薫りが
静かに物語る重厚な佇まい。

今も息づく粋や気品と
響き合うよう伝統的な美を採り入れ、
奥ゆかしさを留めながらも
現代の建築美に置き換えた誇り高き私邸。

「伝統と革新」を重ね、
年月とともに深まる癒し、愛着、そして 洗練と優美。

刻一刻と変わりゆく都心の中で、際立った存在感を標す、

此処に、邸宅の美学を。

フリーディア大濠公園プレミアム

全15邸

Design

凜として、飾らない、
品格のある立ち姿。

目立つのではなく、この地に馴染むことを美徳とし、
誇るのではなく、密やかさを美意識にする。
この地で永く愛されてきた大濠公園から
着想を得た「静謐なる私邸」を。

NEO Classic

洗練と伝統が宿る、
奥ゆかしき空間美。

感性に響く、空間の美と質。
やすらぎに満ちた日々を描く。

クラシカルな趣とモダンな印象が共存し、
街の誇りとなる邸宅へ。

この地にあるべき、美しき創造。

通りをひとつ横に入るだけで世界が変わる。
この街と出逢い描いたのは、
自らが美しい景観の基点となること。
通りと一線を画し、
都心の路地を意識した、五感で安らぐ佇まい。
上質かつ洗練を極め、
細部に奥ゆかしさをデザインした気品のレジデンス。

Entrance Approach

エントランスからの連続性を意識した陽光が
豊かに満ちる
エントランスホール。
天井まで伸びる正方形のグリッドの窓の構成が美しく、
上質に調和し、
屋内外のつながりを感じさせる広がりを演出。

Entrance hall

Entrance hall

目立つのではなく、この地に馴染むことを美徳とし、
誇るのではなく、密やかさを美意識に。
旧くから永く愛されてきた大濠公園から着想を得た
「静謐なる私邸」を。

7階Etype

5階Btype

6階Dtype

壮麗に佇む。

Entrance Approach

来場予約受付中

※徒歩分数は80m=1分として算出(端数切り上げ)したものです。
※掲載のイメージは大濠公園の風景写真に加工を施したものです。
※掲載の外観イメージ画像は計画中の図面をもとにデザイン加工したイメージにAIによる加工を加えており、実際のものとは異なります。

Select 1

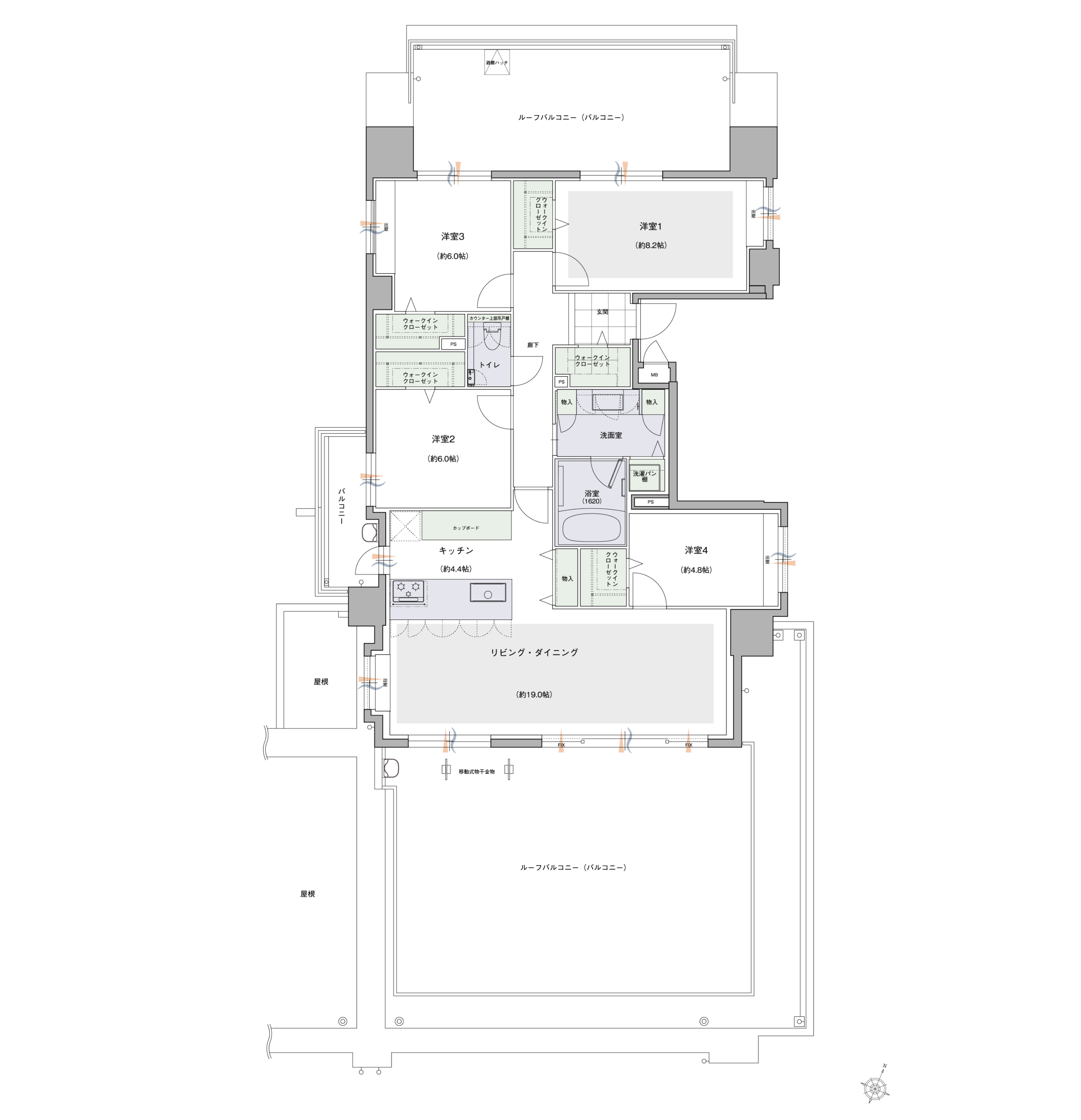
Etype

4LDK

専有面積

111.12(33.61坪)

■バルコニー面積/25.88㎡(7.82坪)
■ルーフバルコニー面積/56.77㎡(17.17坪)

typeE 間取りイメージ

床暖房 収納 水回り 通風 採光 床暖房 収納 水回り 通風 採光